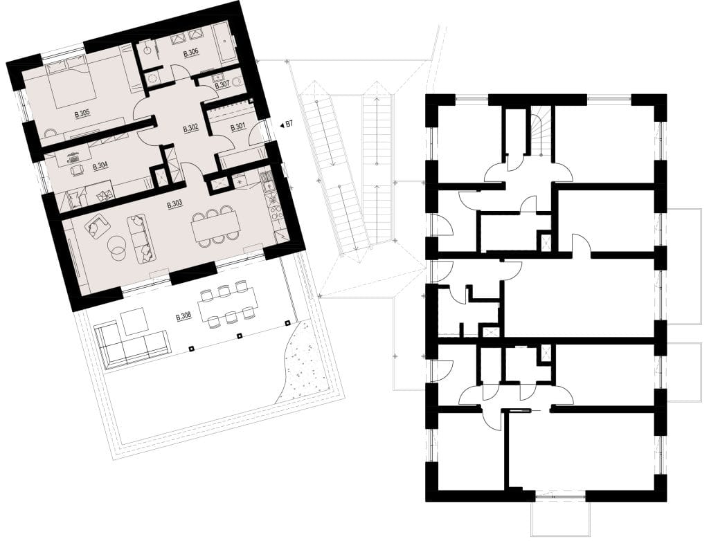
Byt B7

Podlaží2.NP
Dispozice3+kk
Výměra95,90 m2
Balkon/terasa58,30 m2
StavProdaný
Cena-
dokument
Karta bytu
(618 KB)
CTA Kejduš

Kontaktujte
našeho makléře

Máte dotazy nebo si chcete sjednat prohlídku? Náš zkušený makléř vám rád objasní detaily a bezpečně vás provede celým procesem koupě bytu v Rezidenci Židlochovice.

Kontaktovat makléře